«БЕРГЕН» (Клееный брус)
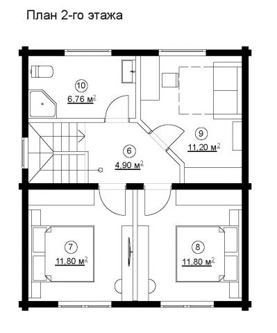
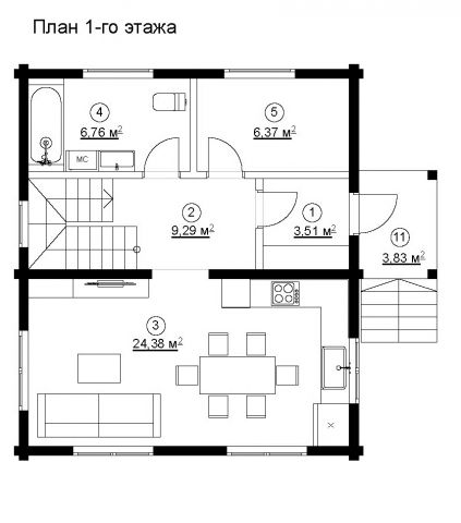
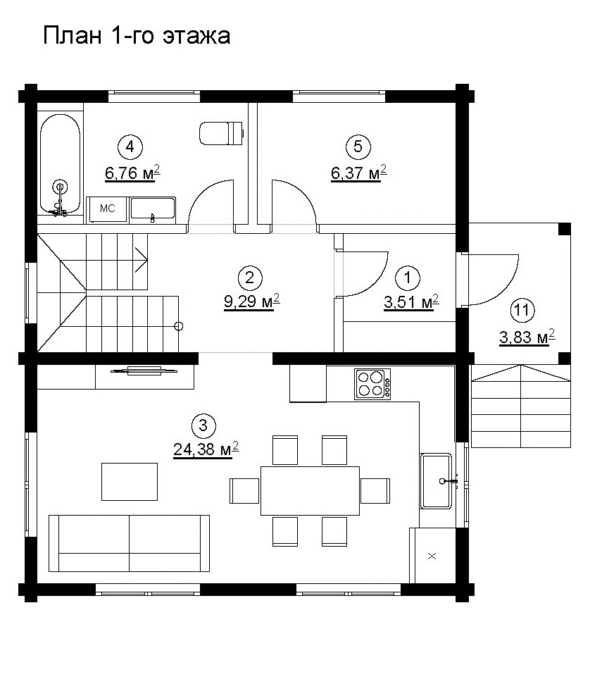
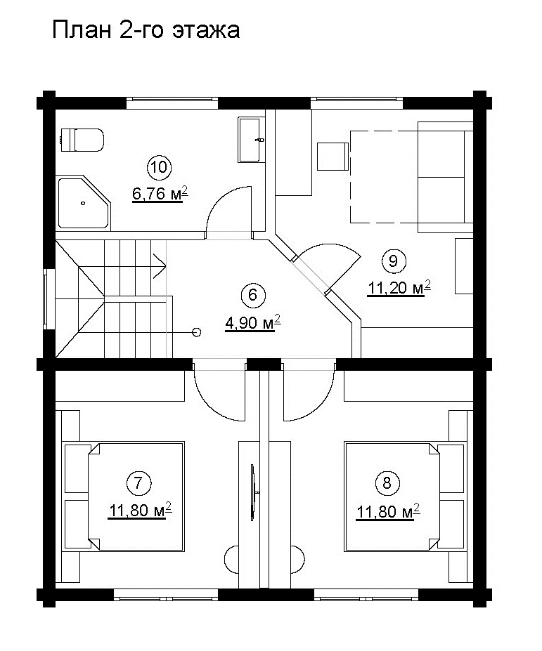
2 этажа, 5 комнат, общая площадь 100.00 кв.м.

Общая площадь:
100.00 кв.м.
Технология:
Клееный брус
Количество этажей:
2
Количество комнат:
5
Количество ванных:
2
Стоимость дома
от 1 980 000 руб.
Характеристики проекта:
- Общая площадь: 100 м2
- Линейные размеры: 7*8
- Площадь застройки: 69 м2
- Срок строительства: 30-45 раб. дней




