«Династия» (Газобетон)
2 этажа, 4 комнаты, общая площадь 210.00 кв.м.

Общая площадь:
210.00 кв.м.
Технология:
Газобетон
Количество этажей:
2
Количество комнат:
4
Количество ванных:
1
Стоимость дома
от 3 100 000 руб.
Характеристики проекта:
- Тип фундамента: Ленточный, перекрытый монолитной ж/б плитой
- Тип наружных стен: Газобетон
- Тип внутренних стен: ГКЛ, утеплитель / Пазогребневые плиты
- Тип перекрытий: ЛСТК / Монолитный пенобетон / Брус
- Крыша: Стропильная конструкция (дерево)
- Тип кровли: Металлочерепица / Гибкая черепица
- Наружная отделка: Декоративный камень/ Штукатурка/ Молдинг / Лепнина
- Наружная отделка цоколя: Облицовочный искусственный камень
- Количество этажей: 2
- Высота 1 этажа: 3 м
- Высота 2 этажа: 2,85 м
- Площадь общая/жилая: 210 / 62 м2
- Количество жилых комнат: 4
- Дополнительные опции: Балкон, выход на открытую террасу
Этот необычный и презентабельный готовый проект двухэтажного загородного дома площадью 210 кв.м. станет прекрасным решением для тех людей, которые находятся в активном поиске качественных решений для того, чтобы перебраться подальше из большого города в более тихое и спокойное место.
В этом доме всегда найдется место для большого семейства. За внешний вид строения отвечает декоративный камень в сочетании с фасадным молдингом и нежной и величественной лепниной.
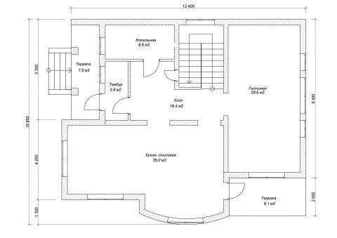
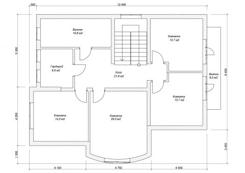
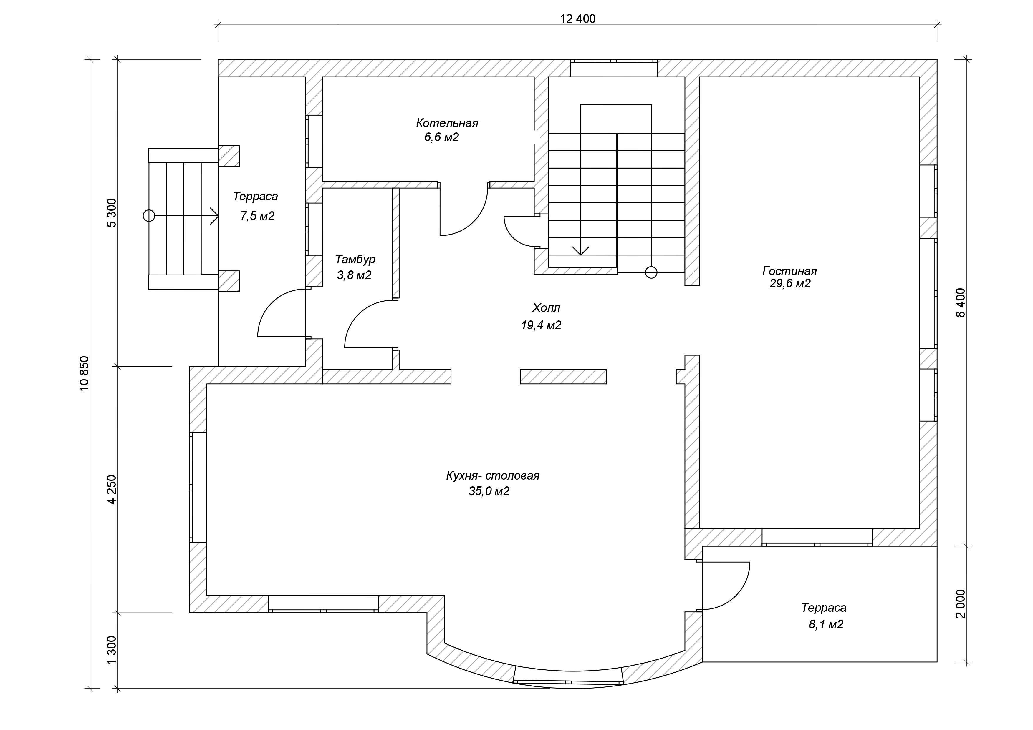
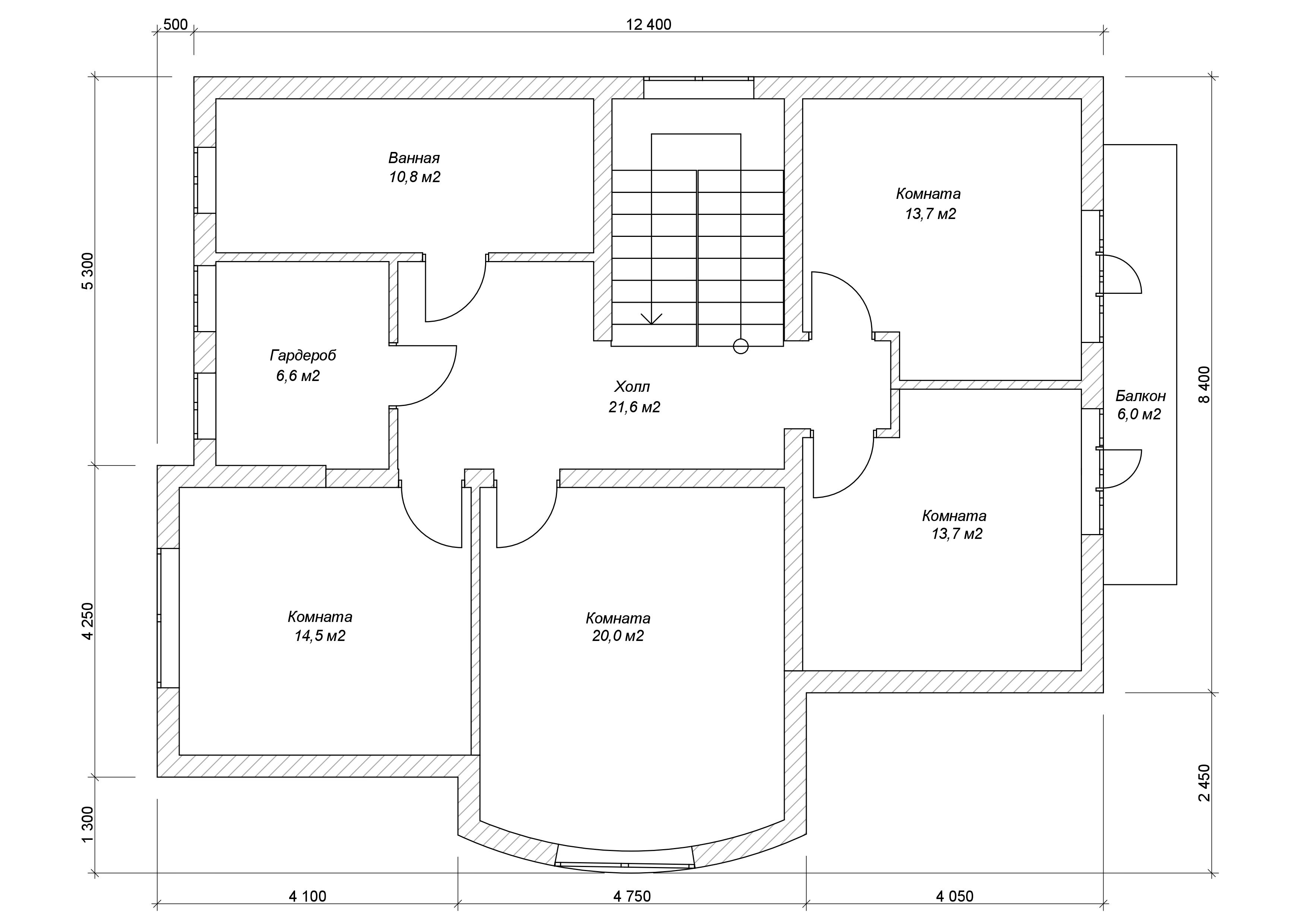
На первом этаже в доме вас ждет просторная гостиная, кухня-столовая, две небольших открытых террасы, удобная прихожая, холл и котельная. На втором этаже расположены четыре спальных комнаты, две из которых имеют выход на балкон, а также холл, ванная и гардероб.



