«ГЕРЦОГ» (Оцилиндрованное бревно)

2 этажа, 10 комнат, общая площадь 338.00 кв.м.
Общая площадь: 
338.00 кв.м.
Технология: 
Оцилиндрованное бревно
Количество этажей: 
2
Количество комнат: 
10
Количество ванных: 
2
Количество гаражей: 
1
Стоимость дома
от 1 223 600 руб.
Характеристики проекта: 
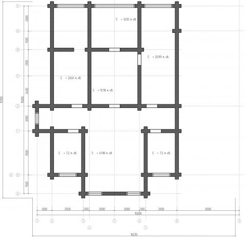
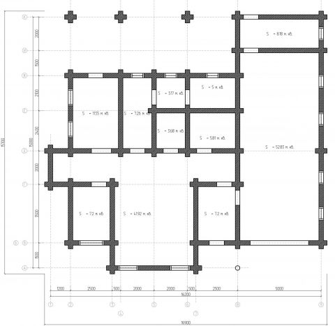
  • Общая площадь: 338 м2
  • Линейные размеры: 15.7х16.9 м
  • Площадь застройки: 265 м2
  • Количество этажей: 2
  • Количество жилых комнат: 10
  • Санузел: совмещенный
  • Срок строительства: 120 - 150 раб. дней

По желанию заказчика мы можем выполнить всю чистовую отделку дома
и прокладку коммуникаций.

Варианты комплектации

Комплектации

Комплектации

«Эконом»

В комплектацию входит:

- Домокомплект
- Подробная инструкция по сборке
- Выезд технадзора

от 1 223 600 руб.
120 - 150 раб. дней
*стоимость дома указана «от», так как в данной комплектации возможно разное количество вариаций

В комплектацию, на фундамент заказчика, входит:

- Сборка сруба
- Отделка кровли

от 2 717 980 руб.
120 - 150 раб. дней
*стоимость дома указана «от», так как в данной комплектации возможно разное количество вариаций

В комплектацию входит:

- Заливка фундамента
- Сборка сруба
- Отделка кровли

от 3 150 080 руб.
120 - 150 раб. дней
*стоимость дома указана «от», так как в данной комплектации возможно разное количество вариаций

Мы не увеличиваем смету в ходе строительства

Мы выезжаем на участок, составляем полный пакет архитектурной и проектной документации и спецификацию всех материалов, применяемых для строительства. Поэтому смета получается точной и не меняется в ходе строительства.

Хотите записаться на бесплатную экскурсию?
Позвоните мне по тел.:
+7 (909) 057-61-29
С 9 до 19 часов по будням
Кирилл
Специалист по продаже земельных участков
Оставьте свой номер, я вам перезвоню
 
1 Начало 2 Завершен
CAPTCHA на основе изображений
Введите символы, которые показаны на картинке.

Похожие проекты

«МОЛДАВАНКА» (Профилированный брус)

2 этажа, 4 комнаты
Общая площадь: 
130.00 кв.м.
Технология: 
Профилированный брус
4
1
от 579 600 руб.

«МОЛДАВАНКА» (Клееный брус)

2 этажа, 4 комнаты
Общая площадь: 
130.00 кв.м.
Технология: 
Клееный брус
4
1
от 579 600 руб.

«МОЛДАВАНКА» (Рубленное бревно)

2 этажа, 4 комнаты
Общая площадь: 
130.00 кв.м.
Технология: 
Рубленное бревно
4
1
от 579 600 руб.