«ЛИДЕР» (Оцилиндрованное бревно)
1 этаж, 2 комнаты, общая площадь 40.00 кв.м.

Общая площадь:
40.00 кв.м.
Технология:
Оцилиндрованное бревно
Количество этажей:
1
Количество комнат:
2
Количество ванных:
1
Стоимость дома
от 202 400 руб.
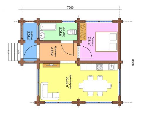
Характеристики проекта:
- Общая площадь: 40 м2
- Линейные размеры: 7.2х6м
- Площадь застройки: 43 м2
- Количество этажей: 1
- Количество жилых комнат: 2
- Санузел: совмещенный
- Срок строительства: 20 - 30 раб. дней
По желанию заказчика мы можем выполнить всю чистовую отделку дома
и прокладку коммуникаций.




