«МЕЧТА» (Рубленное бревно)
2 этажа, 5 комнат, общая площадь 115.00 кв.м.

Общая площадь:
115.00 кв.м.
Технология:
Рубленное бревно
Количество этажей:
2
Количество комнат:
5
Количество ванных:
1
Стоимость дома
от 460 000 руб.
Характеристики проекта:
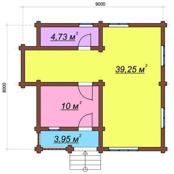
- Общая площадь: 115 м2
- Количество этажей: 2
- Количество жилых комнат: 5
- Санузел: совмещенный
- Срок строительства: 25 - 45 раб. дней
По желанию заказчика мы можем выполнить всю чистовую отделку дома
и прокладку коммуникаций.




