Твинхаус «75+75» (ЛСТК)

- Тип фундамента: Ленточный, перекрытый монолитной ж/б плитой
- Тип наружных стен:Лстк
- Тип внутренних стен: ГКЛ, утеплитель / Пазогребневые плиты
- Тип перекрытий: ЛСТК / Монолитный пенобетон
- Крыша: Стропильная конструкция (дерево)
- Тип кровли: Металлочерепица / Гибкая черепица
- Наружная отделка: Декоративный камень/ Штукатурка/ Кирпич
- Наружная отделка цоколя: Облицовочный искусственный камень
- Количество этажей: 1
- Высота этажа: 3 м
- Площадь общая/жилая: 75/58.6 + 75/58.6 м2
- Количество жилых комнат: 3+3
- Дополнительные опции: Кладовая, дополнительный выход на участок
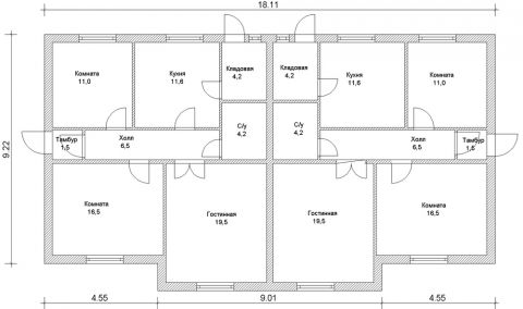
Твинхаус «75+75» — это одноэтажный загородный дом, предназначенный для раздельного проживания одной большой или двух семей. Твинхаус разделен на две половинки капитальной стеной, при этом ничего не мешает объединить их.
Общая площадь каждой из половинок твинхауса — 75 кв. м. По внутреннему интерьеру каждая из частей без преувеличения является полноценным загородным домом, ничем не уступающим отдельным коттеджам.
Для каждой семьи твинхаус «75+75» имеет собственный отдельный вход, две изолированные спальни, просторную гостиную, большую кухню с отдельной кладовой, увеличенную ванную комнату, а также выход на приусадебный участок. В каждой половинке предусмотрена собственная котельная, канализация, а также индивидуальное подключение коммуникаций.
По сути, твинхаус «75+75» — это две 3-х комнатные загородные квартиры улучшенной планировки с собственным земельным участком.
