«Усадьба 195» (Газобетон)

- Тип фундамента: Ленточный, перекрытый монолитной ж/б плитой
- Тип наружных стен: Газобетон
- Тип внутренних стен: ГКЛ, утеплитель / Пазогребневые плиты
- Тип перекрытий: ЛСТК / Монолитный пенобетон / Брус
- Крыша: Стропильная конструкция (дерево)
- Тип кровли: Металлочерепица / Гибкая черепица
- Наружная отделка: Декоративный камень/ Штукатурка/ Облицовочный кирпич
- Наружная отделка цоколя: Облицовочный искусственный камень
- Количество этажей: 2
- Высота 1 этажа: 3 м
- Высота 2 этажа: 2,85 м
- Площадь общая/жилая: 195 / 98 м2
- Количество жилых комнат: 5
- Дополнительные опции: Балкон, эркер, дополнительный выход, сауна
Представленный проект можно считать современным воплощением традиционной русской усадьбы. Архитектурное исполнение дома подчеркнуто парадностью центрального входа и прорисовкой фасадов с включением мотивов русского ампира, что создает ощущение незыблемости, комфорта и надежности.
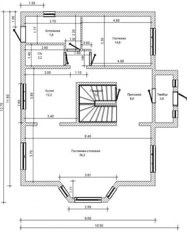
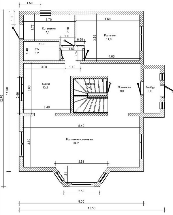
Первый этаж разделен на три части: в одной из них располагается светлая гостиная с широким панорамным эркером, во второй технические, хозяйственные и бытовые помещения, в третьей — холл первого этажа связывает между собой все помещения, гардеробную и лестничный марш, далее плавно переходит в кухонную зону.
Такая организация внутреннего пространства призывает к тщательной проработке интерьерного дизайна, что выгодно подчеркнет индивидуальность и изысканный вкус владельцев.
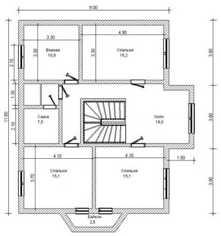
Второй этаж спроектирован как пространство для отдыха и сна.

