«ВАРЯГ 2» (Рубленное бревно)

2 этажа, 4 комнаты, общая площадь 62.00 кв.м.
Общая площадь: 
62.00 кв.м.
Технология: 
Рубленное бревно
Количество этажей: 
2
Количество комнат: 
4
Количество ванных: 
1
Стоимость дома
от 294 400 руб.
Характеристики проекта: 
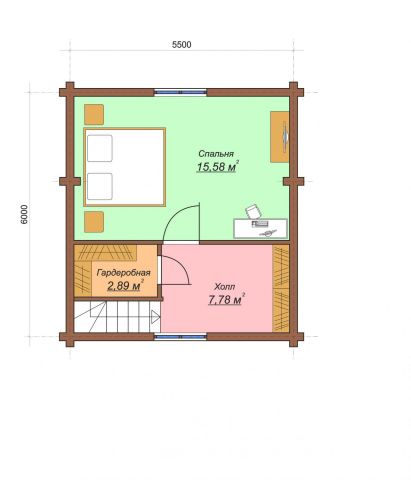
  • Общая площадь: 62 м2
  • Линейные размеры: 5,5*6
  • Площадь застройки: 50 м2
  • Срок строительства: 20-30 раб. дней

Варианты комплектации

Комплектации

Комплектации

Домокомплект + подробные инструкции
Домокомплект + подробные инструкции по сборке + выезд технаддзора
от 294 400 руб.
20 - 30 раб. дней
*стоимость дома указана «от», так как в данной комплектации возможно разное количество вариаций
на фундамент заказчика
от 651 550 руб.
20 - 30 раб. дней
*стоимость дома указана «от», так как в данной комплектации возможно разное количество вариаций
от 770 750 руб.
20 - 30 раб. дней
*стоимость дома указана «от», так как в данной комплектации возможно разное количество вариаций

Мы не увеличивает смету в ходе строительства

Мы выезжаем на участок, составляем полный пакет архитектурной и проектной документации и спецификацию всех материалов, применяемых для строительства. Поэтому смета получается точной и не меняется в ходе строительства.

Хотите записаться на бесплатную экскурсию?
Позвоните мне по тел.:
+7 (909) 057-61-29
С 9 до 19 часов по будням
Кирилл
Специалист по продаже земельных участков
Оставьте свой номер, я вам перезвоню
 
1 Начало 2 Завершен
CAPTCHA на основе изображений
Введите символы, которые показаны на картинке.

Похожие проекты

«МОЛДАВАНКА» (Профилированный брус)

2 этажа, 4 комнаты
Общая площадь: 
130.00 кв.м.
Технология: 
Профилированный брус
4
1
от 579 600 руб.

«МОЛДАВАНКА» (Клееный брус)

2 этажа, 4 комнаты
Общая площадь: 
130.00 кв.м.
Технология: 
Клееный брус
4
1
от 579 600 руб.

«МОЛДАВАНКА» (Рубленное бревно)

2 этажа, 4 комнаты
Общая площадь: 
130.00 кв.м.
Технология: 
Рубленное бревно
4
1
от 579 600 руб.