«Весна» (Монолитный пенобетон)

1 этаж, 3 комнаты, общая площадь 130.00 кв.м.
Общая площадь: 
130.00 кв.м.
Технология: 
Монолитный пенобетон
Количество этажей: 
1
Количество комнат: 
3
Количество ванных: 
1
Количество гаражей: 
1
Стоимость дома
от 2 200 000 руб.
Характеристики проекта: 
  • Тип фундамента: Ленточный, перекрытый монолитной ж/б плитой
  • Тип наружных стен:Монолитный пенобетон
  • Тип внутренних стен: ГКЛ, утеплитель
  • Тип перекрытий: ЛСТК / Монолитный пенобетон
  • Крыша: Стропильная конструкция (дерево)
  • Тип кровли: Металлочерепица / Гибкая черепица
  • Наружная отделка: Декоративный камень/ Штукатурка/ Кирпич
  • Наружная отделка цоколя: Облицовочный искусственный камень
  • Количество этажей: 1
  • Высота этажа: 3 м
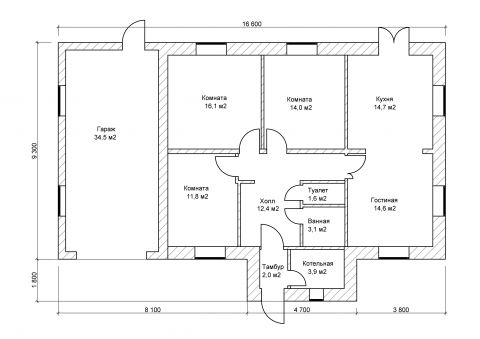
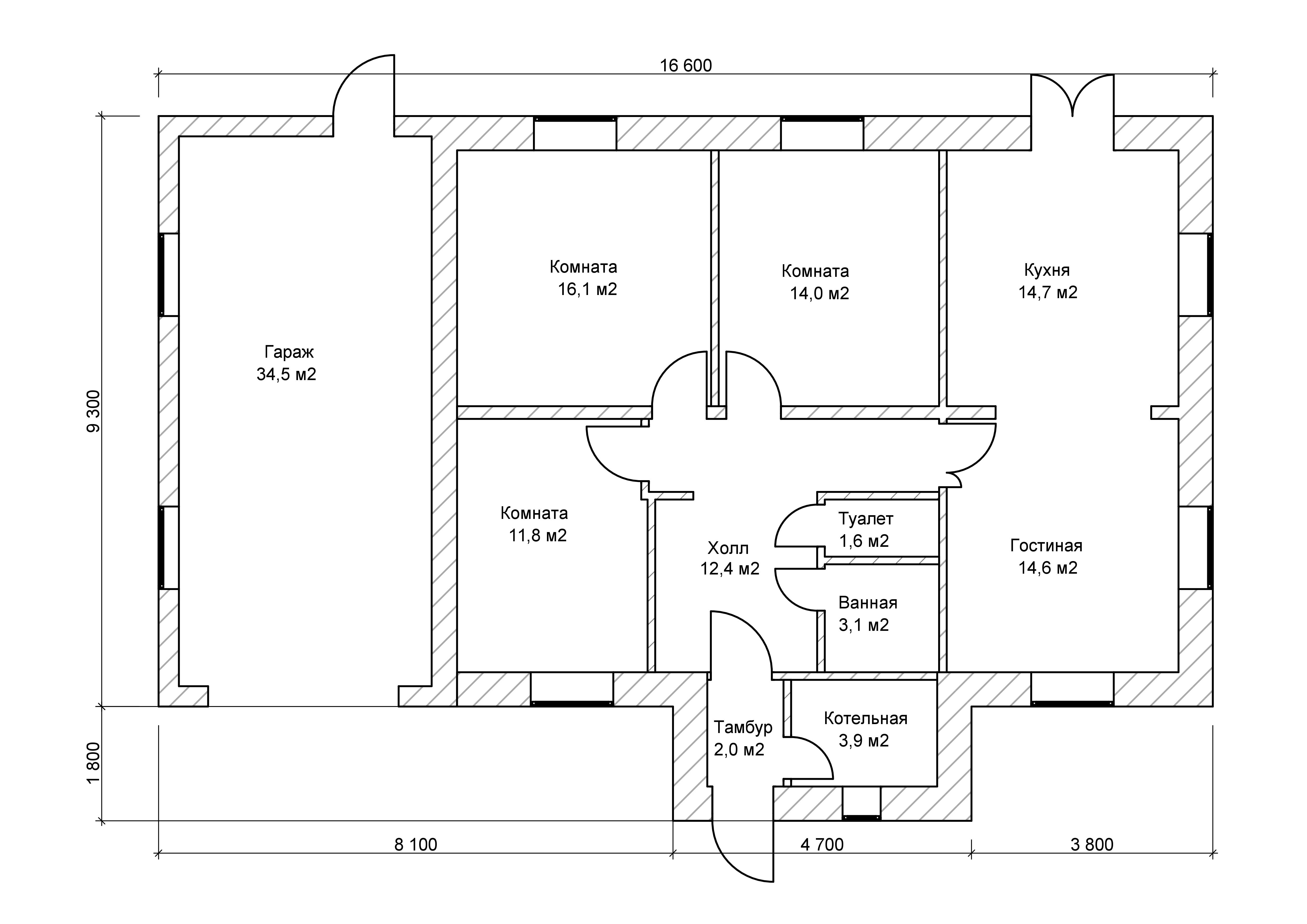
  • Площадь общая/жилая: 130 м2 (95 м2 + 35 м2 гараж) / 42 м2
  • Количество жилых комнат: 3
  • Дополнительные опции: Дополнительный выход на участок, гараж

Если вы уже давно обзавелись собственным земельным участком и хотели бы построить на нем комфортное жилье для своей семьи, тогда вам действительно стоит обратить свое внимание на этот интересный проект одноэтажного дома с гаражом.

Обладая всего одним этажом этот загородный коттедж, общей площадью 130 квадратных метров, предоставит максимум комфорта и удобства даже для большой семьи.

Сам дом имеет три спальни, кухню, совмещенную с гостиной, санузел, котельную, тамбур и просторных холл. Еще одним немаловажным моментом является наличие закрытого гаража на один автомобиль, площадью 35 кв.м.

Варианты комплектации

Комплектации

Комплектации

«Базовый»
Фундамент ленточный, ж/б перекрытие цоколя, стены 1-го этажа, перекрытия 1-го этажа, стены 2-го этажа, чердачное перекрытие, стропильная система, кровля.
от 2 200 000 руб.
от 3-х месяцев
*стоимость дома указана «от», так как в данной комплектации возможно разное количество вариаций
В дополнение к варианту «Базовый»: фасадные отделочные работы, оконные конструкции и входные двери, входная группа, отмостка по периметру дома, система водослива по периметру кровли.
от 2 850 000 руб.
от 5-и месяцев
*стоимость дома указана «от», так как в данной комплектации возможно разное количество вариаций
В дополнение к варианту «Стандарт»: цементно-песчаная стяжка полов, внутренние перегородки ГКЛ, лестничный марш, инженерные сети (электричество, вода, канализация, вентиляция, отопление).
от 3 170 000 руб.
от 6-и месяцев
*стоимость дома указана «от», так как в данной комплектации возможно разное количество вариаций
  • Беспроцентная рассрочка на время строительства и более, без участия банка.
  • Строительство с использованием ипотечных программ (Сбербанк от 11,6%, Солид Банк), а также материнского капитала.
  • По завершении работ и регистрации строения, Вы сможете вернуть 13% затрат на строительство от государства по НДФЛ (ст. 220 НК РФ)!

Калькулятор ипотеки

ПАО «Сбербанк»
1 600 000 р.
18085 р./мес

Отправить заявку на ипотеку

Гарантия 5 лет на выполненные работы!

Бесплатные консультации!

Покажем, как все устроено!

Хотите записаться на бесплатную экскурсию?
Позвоните мне по тел.:
+7 (909) 057-61-29
С 9 до 19 часов по будням
Кирилл
Специалист по продаже земельных участков
Оставьте свой номер, я вам перезвоню
 
1 Начало 2 Завершен
CAPTCHA на основе изображений
Введите символы, которые показаны на картинке.

Похожие проекты

«МОЛДАВАНКА» (Профилированный брус)

2 этажа, 4 комнаты
Общая площадь: 
130.00 кв.м.
Технология: 
Профилированный брус
4
1
от 579 600 руб.

«МОЛДАВАНКА» (Клееный брус)

2 этажа, 4 комнаты
Общая площадь: 
130.00 кв.м.
Технология: 
Клееный брус
4
1
от 579 600 руб.

«МОЛДАВАНКА» (Рубленное бревно)

2 этажа, 4 комнаты
Общая площадь: 
130.00 кв.м.
Технология: 
Рубленное бревно
4
1
от 579 600 руб.