«ВИОЛА» (Рубленное бревно)
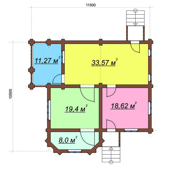
2 этажа, 5 комнат, общая площадь 169.00 кв.м.

Общая площадь:
169.00 кв.м.
Технология:
Рубленное бревно
Количество этажей:
2
Количество комнат:
5
Количество ванных:
1
Стоимость дома
от 570 400 руб.
Характеристики проекта:
- Общая площадь: 169 м2
- Линейные размеры: 10.5х10м
- Площадь застройки: 105 м2
- Количество этажей: 2
- Количество жилых комнат: 5
- Санузел: совмещенный
- Срок строительства: 30 - 45 раб. дней
По желанию заказчика мы можем выполнить всю чистовую отделку дома
и прокладку коммуникаций.





